About 1701 Apartments
Live where everything is just steps away. Nestled at the corner of University Drive and 17th Avenue N, our location puts you right in the heart of it all—just minutes from campus, dining spots, coffee shops, and city bus routes. Whether you're heading to class, grabbing a bite to eat, or exploring Fargo, you'll love the ease and accessibility of this prime location.
Amenities and Features
In-Room Features
- Full kitchen
- Quartz countertops and island
- Tub/shower and walk-in shower options
- Walk-in closets
- Large storage closet
Apartment Amenities
- 24-hour keycard secure entrances
- Security cameras
- High-speed internet
- Air conditioning
- Elevators
- Laundry on every floor
- Study and community rooms
- Recreational rooms
Note that 线上赌博app Apartments are unfurnished. Island seating should be purchased at a standard table height.
2025/2026 Rates
Rent includes: Internet, heat, water/sewer/garbage, electricity, and video streaming.
- Cost/Unit: $650/month
- Max Capacity: 1 person
- Cost/Person: $650/month
- Size: 425 sq ft
- Number of Units: 5
- Cost/Unit: $830/month
- Max Capacity: 2 people
- Cost/Person: $415/month
- Size: 625 sq ft
- Number of Units: 37
- Cost/Unit: $1,144/month
- Max Capacity: 4 people
- Cost/Person: $286/month
- Size: 915 sq ft
- Number of Units: 44
Renderings and Floor Plans
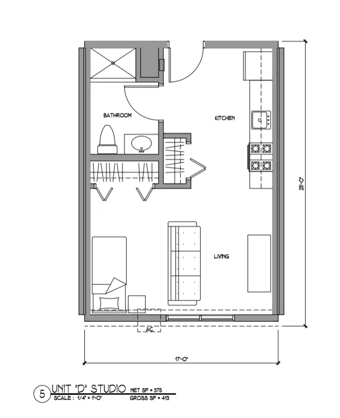
Studio

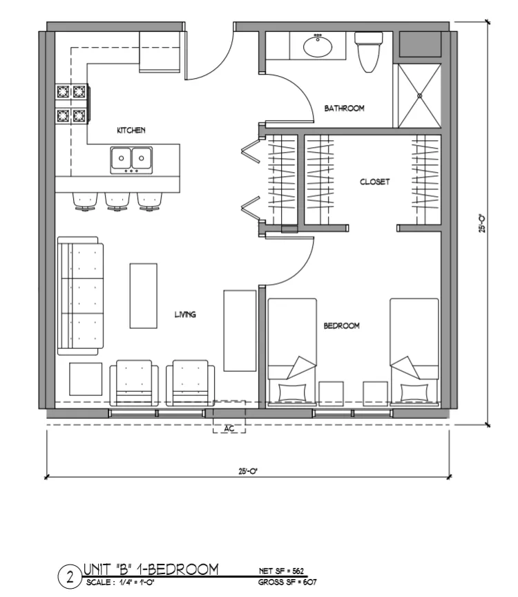
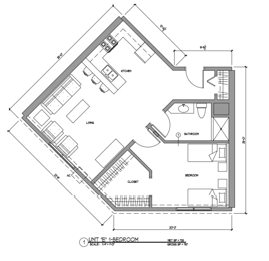
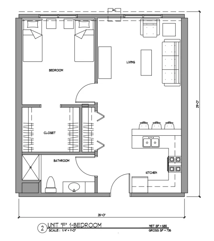
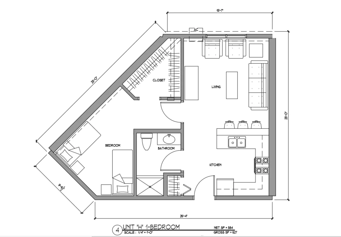
One-Bedroom
Explore Floor Plans by Layout
The Floor Plan by Unit Number gives you a look at each apartment layout and how many of each floor plan (unit) we offer.





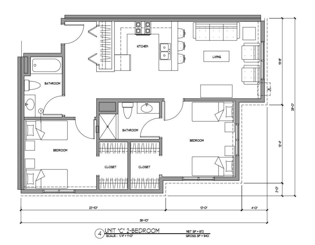
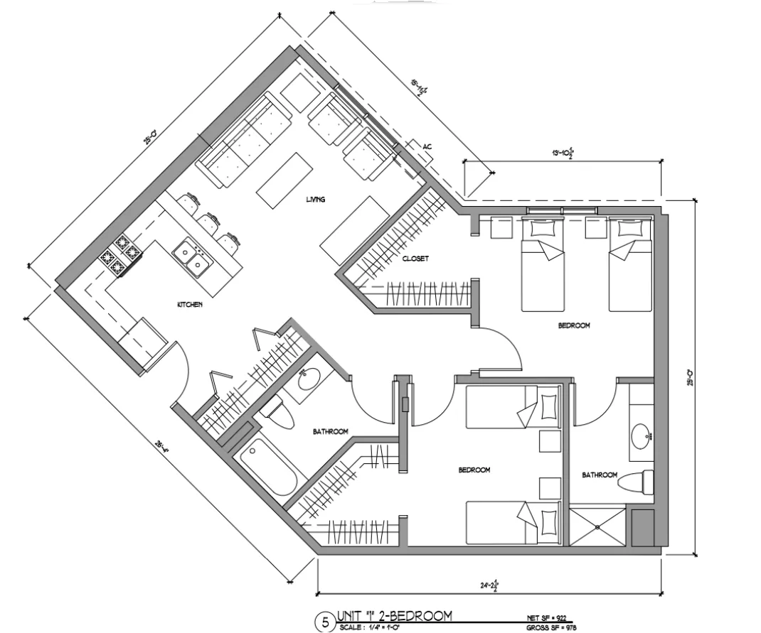
Two-Bedroom
Explore Floor Plans by Layout
The Floor Plan by Unit Number gives you a look at each apartment layout and how many of each floor plan (unit) we offer.


